Description
AVAILABLE 1st MAY – Please email to register your interest
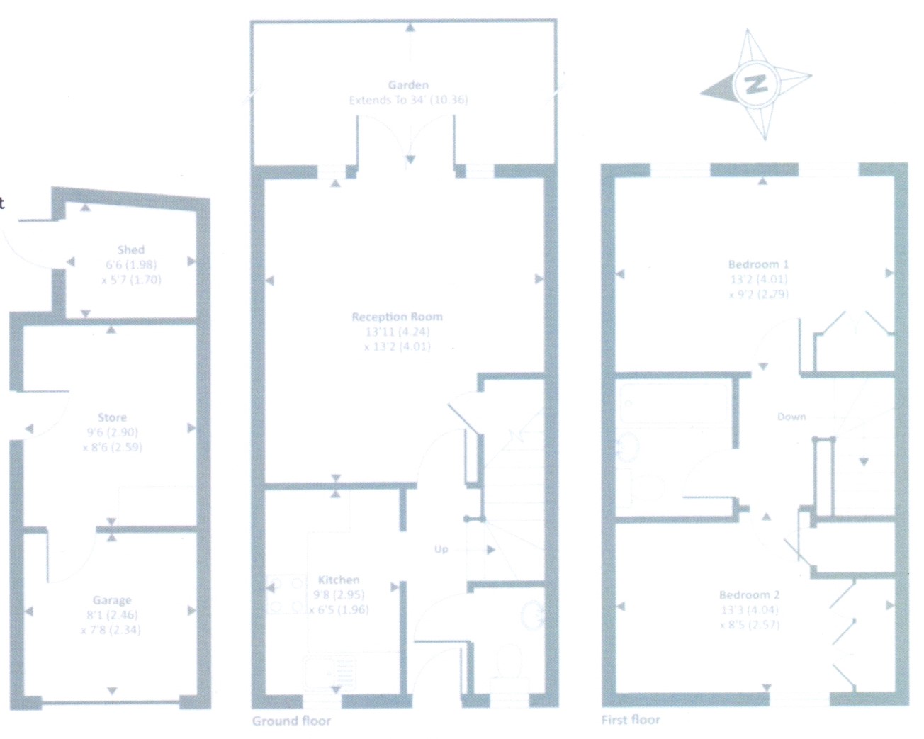
A well presented semi-detached house situated on the ever popular Shilton Park development, a short walk from on-site shop, school and park.
Accommodation comprises:
Entrance Hall
Kitchen (Built in oven and hob) space/plumbing for fridge, washing machine
Lounge / Dining Room (French doors to garden / Large cupboard)
Cloakroom / WC
Two Bedroom (both with built-in storage)
Bathroom (with electric shower over)
Small, enclosed rear garden, paved with artificial grass, large timber store, gate to driveway – Off road parking for two vehicles.
The garage has been split creating storage area/loft access and purpose built home office with part glazed door to garden.
NOTE: Stock photo’s have been used for this advert
EPC: C
Council Tax Band: C – WODC










